Wohnen für Leute mit Weitblick, tolle Lage

  • Objekt-NrUHI 10906
  • Zimmer
    4
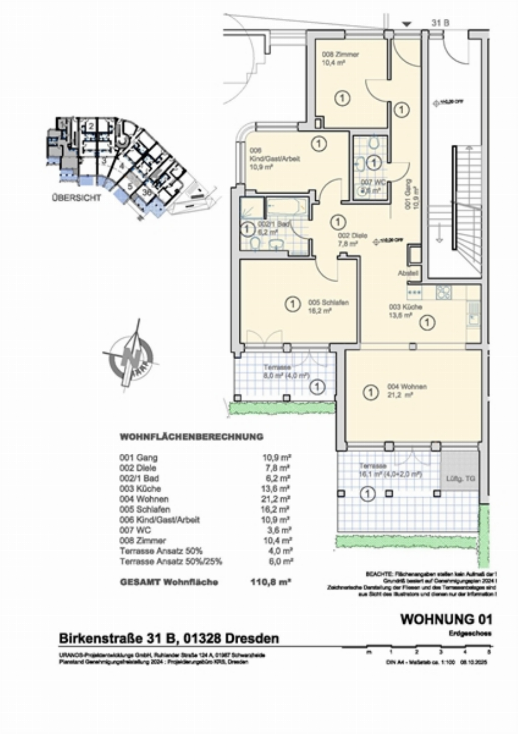
  • Wohnfläche
    110.8 m²
  • Kaufpreis
    609.400 €

Objektangaben

Baujahr
1998
Wohnfläche
110.8 m²
Zimmer / Räume
4
Nutzungsart
Wohnen
Vermarktungsart
Kauf
Postleitzahl
01328
Ort
Dresden
Courtage Hinweis
keine Maklercourtage, Provisionsfrei
keine Notargebühren außer Ihre Grundschuldbestellungsgebühren

Ausstattung

Kategorie
Luxus
Heizungsart
Fußboden
Befeuerung
Gas
Stellplatzart
Tiefgarage
Gartennutzung
Ja
Rollstuhlgerecht
Ja
Kabel/SatTV
Ja
Unterkellert
Keller
Gäste WC
Ja

Objektbeschreibung

Im Jahr 2025 bis 2026 wurden aus den ehemaligen 5 Gewerbeeinheiten im Erdgeschoss des Hauses, in 6 hochwertige Eigentumswohnungen umgebaut.
Dieses gehobene Wohnensemble in Dresden Pappritz mit den Gefühl eines eigenen Hauses im Haus, steht für eine hohe Wohnqualität verbunden zur unmittelbaren Nähe zur Natur und zum Dresdner Stadtzentrum.
Bei der Wohnung wurde bewusst auf eine Warme zeitgemäße Ästhetik des Wohlfühlen in Ihren zu Hause vermittelt.
Hier wurde ein Ort geschaffen, der Beständigkeit ausstrahlt und sich unaufdringlich in die gewachsene Struktur der Nachbarschaft einfügt.
Ein zentrales Element ist die sehr aufwendige Gartengestaltung, mit einen von März bis Oktober gestalteten Blühgarten.
In Ihren neuen Domizil bietet sich daher naturnah und doch zentrumsnah zu leben.

Lage

Dresden-Pappritz ist eine gehobene, ruhige Wohnlage im
Dresdner Schönfelder Hochland, die durch Einfamilienhäuser, viel Grün und weite Aussichten (u.a. via Agneshöhe) besticht.

Kontakt

Epart
Bedarf
gültig bis
01-2028
mit Warmwasser
Ja
Endenergiebedarf
74.8 kWh/(m²⋅a)
Primärenergieträger
Gas
Wärmewert
74,8 kWh/(m²⋅a)
Wertklasse
B
Ausstelldatum
2018-01-08


ZURÜCK DRUCKEN
* Pflichtfelder